Архитектура и дизайн
Сотрудничество
Каталоги

Голосуй за понравившийся проект и получай скидку на проживание в отелях с окнами FAKRO!
ПодробнееПроект компании Фленсбург, Компания «Дом Себе» выполнен по технологии фахверк, где основой здания служит силовой каркас из клееного бруса, а пространство между несущими элементами заполняется остеклением и глухими участками стен.
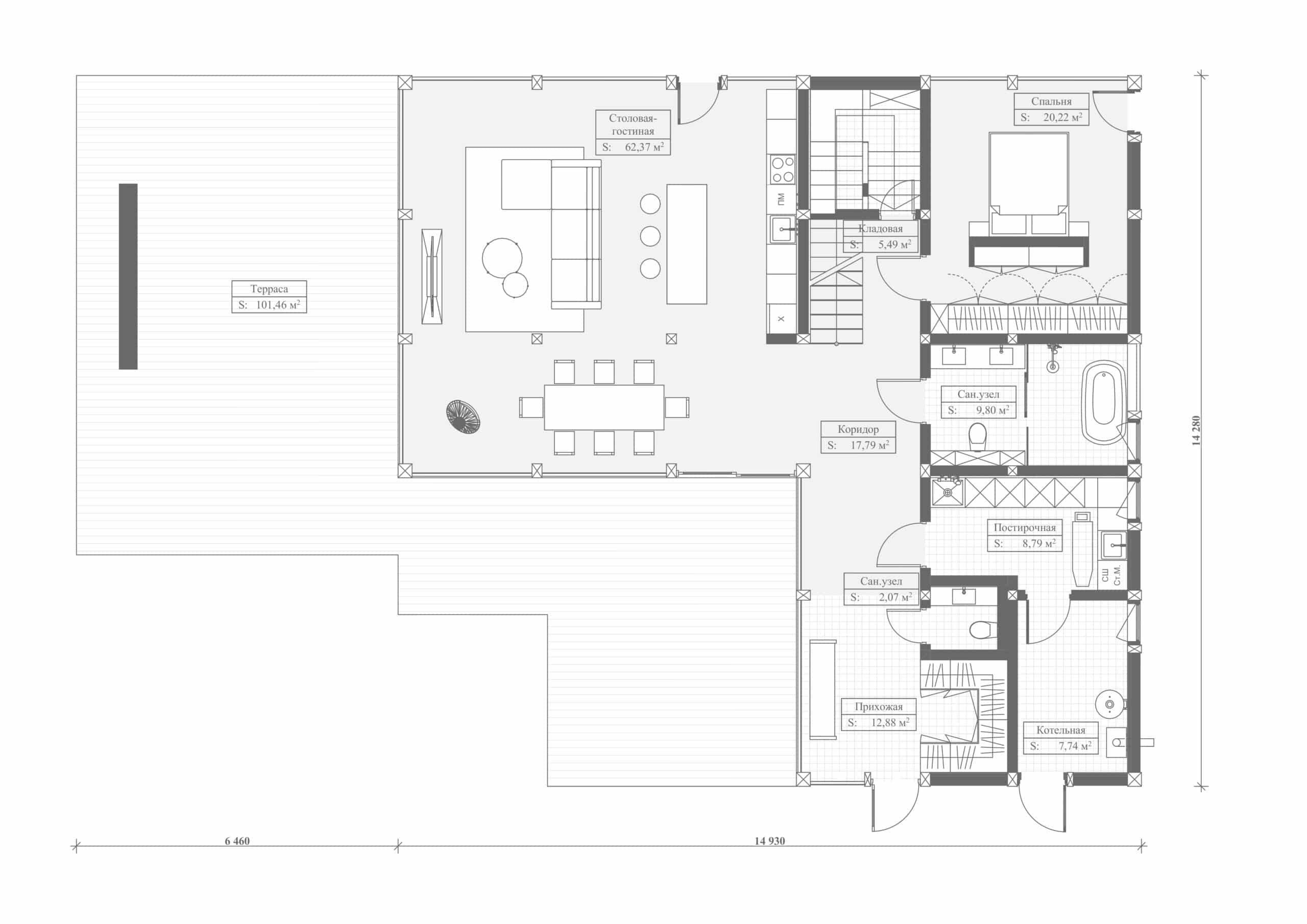
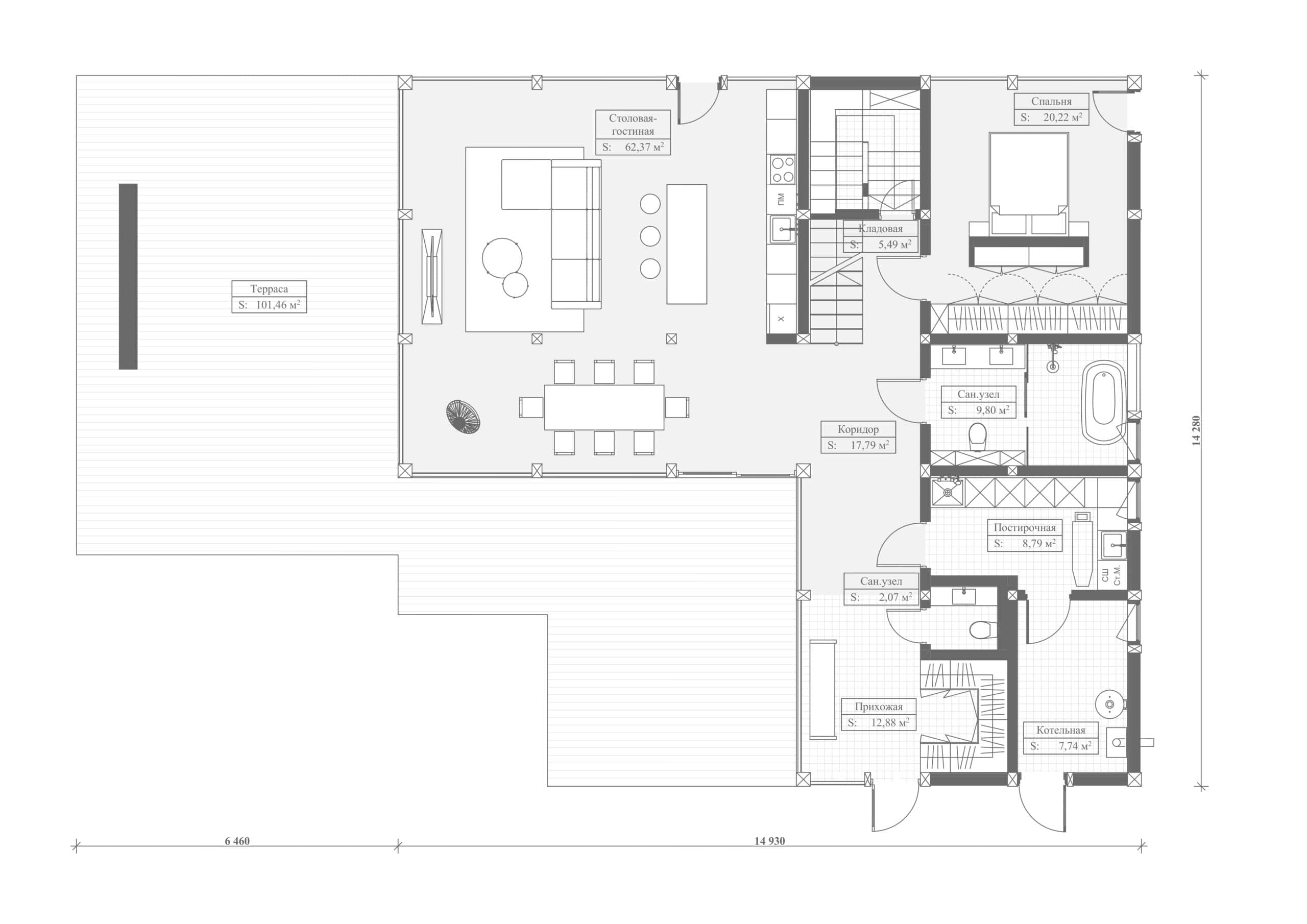
Этот проект решен как современный двухэтажный загородный дом общей внутренней площадью 213,21 м². Площадь первого этажа составляет 147,15 м², второго этажа 66,06 м². Дополнительно предусмотрены две террасы общей площадью 120,17 м²: основная терраса 101,46 м² на первом уровне и приватная терраса 18,71 м² на втором. Эти показатели рассчитаны по представленным планировкам проекта.
Архитектура дома строится на открытом фахверковом каркасе, крупных плоскостях остекления и спокойной горизонтальной композиции. За счет выносов кровли, прозрачного первого уровня и четко читаемой конструктивной сетки дом выглядит легким, но при этом собранным и основательным. Это тот случай, когда технология не прячется, а становится частью эстетики. Фахверк здесь работает не только как инженерное решение, но и как язык архитектуры.
Планировка выстроена просто и грамотно. Центр первого этажа занимает кухня, столовая и гостиная площадью 62,37 м² с прямым выходом на большую террасу. Здесь же размещены прихожая, котельная, постирочная, санузлы, кладовая и спальня. Второй этаж отдан под приватный блок: две спальни, гардероб, санузел, холл и выход на террасу. Пространство организовано так, чтобы общая зона была максимально открытой, а приватная часть оставалась спокойной и изолированной.
Отдельная ценность проекта в том, как он работает со светом. Помимо панорамного остекления, в доме предусмотрены зенитные окна, которые дают верхний естественный свет и делают интерьер глубже, мягче и чище по восприятию. Благодаря этому свет равномерно проходит в общественные зоны, коридоры и проходные пространства, где обычно не хватает естественного освещения. В результате дом воспринимается цельным, воздушным и по-настоящему живым в течение всего дня.
По характеру это современный фахверковый дом для постоянной жизни за городом. В нем соединены открытые виды, крупные световые проемы, логичная планировка и выразительная конструкция из клееного бруса. Проект показывает главные возможности технологии фахверк: свободную организацию пространства, визуальную легкость, тесную связь интерьера с участком и архитектуру, в которой конструкция, свет и пропорции работают как единое целое.
ООО "ДОМ СЕБЕ"
https://domsebe.com/
8 (812) 770-65-94
8 (800) 505-82-76
domsebe2021@yandex.ru
Важно, вы можете вносить изменения в проект, а также выбирать технологии строительства и много других параметров. Пожалуйста, оставьте заявку и наши специалисты с вами свяжутся.


0 отзывов
Общая площадь
213,21
Технология
Фахверк
Количество этажей
2
Площадь первого этажа
147,15 м2
Площадь второго этажа
66,06 м2