Архитектура и дизайн
Сотрудничество
Каталоги

Голосуй за понравившийся проект и получай скидку на проживание в отелях с окнами FAKRO!
ПодробнееПроект Гейдельберг, Компания «Дом Себе» выполнен по технологии клееного бруса. В его основе массивная деревянная конструкция, которая задает дому характер сразу на двух уровнях: конструктивно и визуально. Архитектура здесь строится не на декоративных приемах, а на честной работе материала, крупных объемах и хорошо выверенных пропорциях.
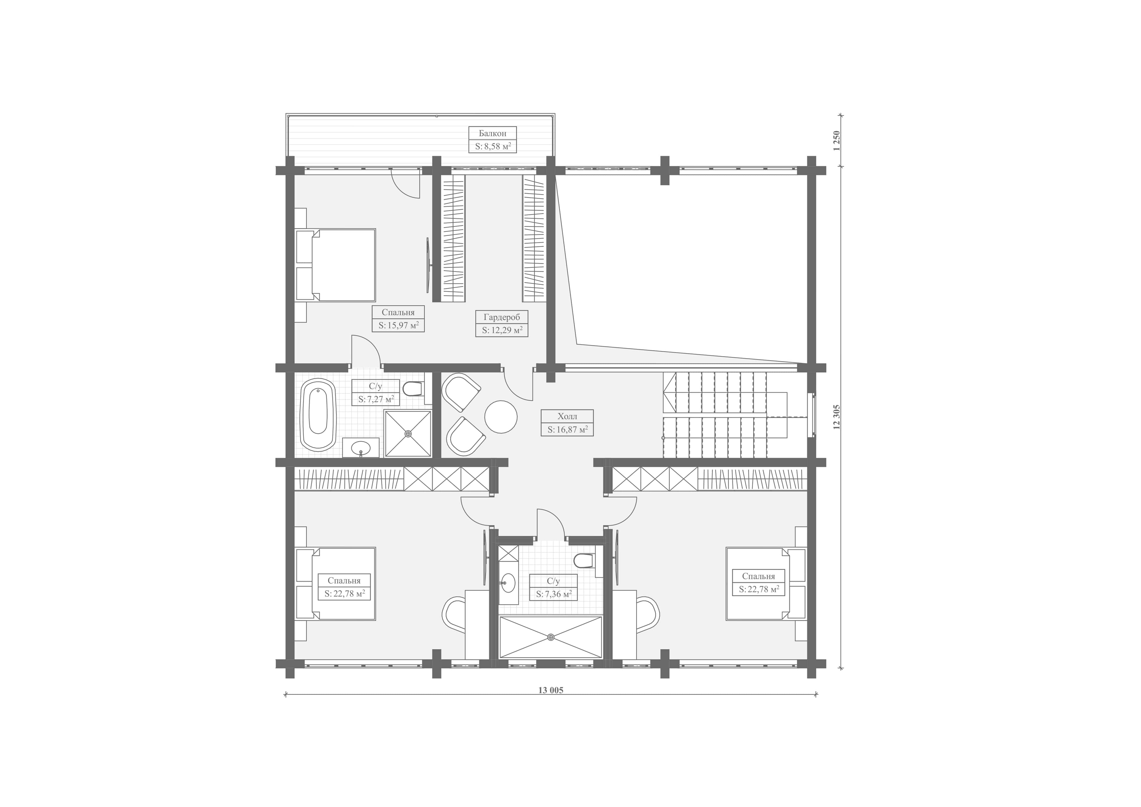
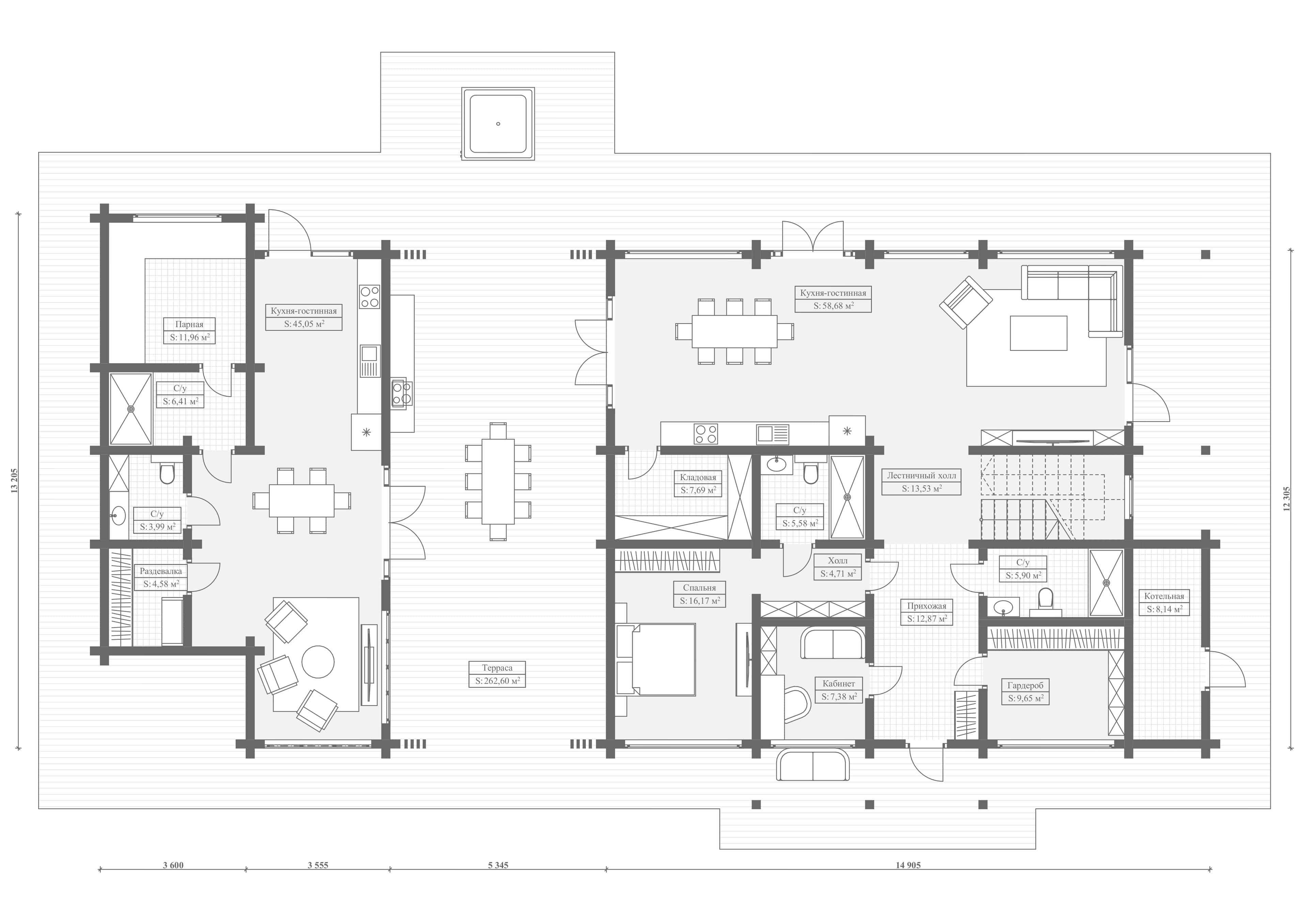
Это двухэтажный загородный дом общей внутренней площадью 327,61 м². Площадь первого этажа составляет 222,29 м², второго этажа 105,32 м². Дополнительно в проекте предусмотрены терраса и балкон общей площадью 271,18 м², из которых 262,60 м² занимает основная терраса и 8,58 м² балкон второго этажа.
Образ дома получился выразительным и при этом спокойным. Сложная скатная кровля, широкие свесы, вертикальный ритм деревянных элементов и большие плоскости остекления делают архитектуру собранной, живой и глубоко связанной с лесным участком. Дом выглядит основательно, но не тяжело. Именно так обычно воспринимается качественная архитектура из клееного бруса: теплая по характеру, современная по подаче и долговечная по сути.
Планировка решена как дом для постоянной жизни с полноценным сценарием отдыха. На первом этаже расположены две кухни-гостиные площадью 45,05 м² и 58,68 м², спальня, кабинет, гардеробная, котельная, кладовая, санузлы, а также отдельный банный блок с парной и зоной отдыха. Пространство выстроено так, чтобы общественные зоны были открытыми и удобными для повседневной жизни, а приватные и технические помещения работали без лишних пересечений.
На втором этаже размещены 3 спальни, 2 санузла, гардеробная, холл и выход на балкон. За счет такой структуры дом подходит для большой семьи и позволяет комфортно разделить общие и личные сценарии жизни.
Отдельная ценность проекта в работе с естественным светом. Помимо панорамного остекления, в доме предусмотрены зенитные окна. Они дают мягкий верхний свет в проходных и влажных зонах, визуально поднимают объем помещений и делают интерьер чище по восприятию. Это особенно хорошо работает в общей зоне и ванной комнате, где свет становится не просто функциональным элементом, а частью атмосферы.
По характеру это современный дом из клееного бруса с ясной архитектурой, большим внутренним объемом и сильной связью с природным окружением. Проект показывает, что деревянный дом может быть не только теплым и надежным, но и по-настоящему актуальным по архитектуре, свету и качеству пространства.
ООО "ДОМ СЕБЕ"
https://domsebe.com/
8 (812) 770-65-94
8 (800) 505-82-76
domsebe2021@yandex.ru
Важно, вы можете вносить изменения в проект, а также выбирать технологии строительства и много других параметров. Пожалуйста, оставьте заявку и наши специалисты с вами свяжутся.


0 отзывов
Общая площадь
327,61
Количество этажей
2
Площадь первого этажа
222,29 м2
Площадь второго этажа
105,32 м2
Терраса
271, 18 м2
Спальня
4
Сан узел
4