Одноэтажный дом из клеёного бруса, выполненный в стиле финской классики, сочетает в себе природную эстетику, продуманную архитектуру и высокий уровень комфорта. Благородный природный оттенок подчеркивает натуральную красоту материала и позволяет дому гармонично вписаться практически в любой ландшафт — будь то лесной участок, загородный поселок или открытая природная местность. Лаконичная архитектура, чистые линии и теплые текстуры создают атмосферу уюта и спокойствия.
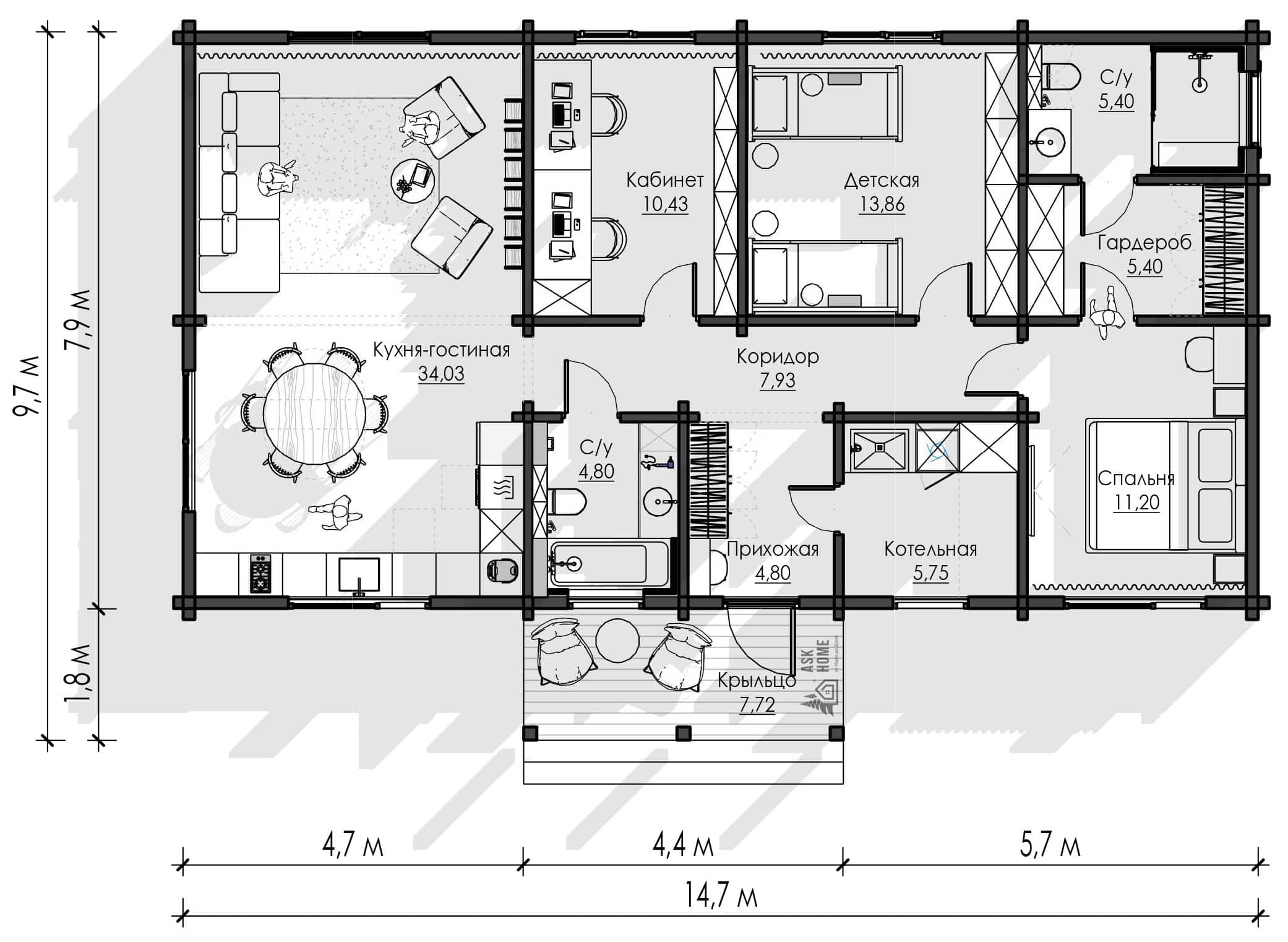
Планировка дома продумана до мелочей и ориентирована на комфортную повседневную жизнь. Уже при входе гостей встречает просторная прихожая, из которой удобно организован проход в котельную — практичное решение для повседневной эксплуатации дома. В общей части расположены удобный санузел, кабинет, который при необходимости легко превращается в гостевую комнату, а также уютная детская. Приватная зона выделена в отдельный мастер-блок: просторная спальня с собственной гардеробной и отдельным санузлом создает атмосферу уединения и личного пространства. Особенность мастер блока – это мансардные окна. Чтобы нивелировать небольшое остекление на стенах мы предлагаем сделать верхнее освещение, которое добавит в помещение солнца и романтического настроения в дождливые дни и звездные ночи.
Сердцем дома становится большая светлая кухня-гостиная с высокими потолками и панорамным остеклением. Пространство наполнено естественным светом, а виды на окружающую природу становятся частью интерьера. Здесь легко представить семейные ужины, встречи с друзьями и спокойные вечера у окна — помещение объединяет кухню, столовую и зону отдыха в единое гармоничное пространство.
Дом из клеёного бруса отличается не только эстетикой, но и экологичностью. Натуральная древесина создает благоприятный микроклимат, регулирует влажность и наполняет пространство естественным теплом и ароматом дерева. Современные технологии обработки обеспечивают долговечность конструкции, энергоэффективность и комфорт проживания в любое время года.
Контакты компании АСК ХОУМ:
Сайт: https://askhome.me/
Email: info@askhome.me
Телефон: +7 962 556 5577